New Construction | 4 Custom Luxury Townhomes – Wildwood, NJ
Introducing an exclusive new construction opportunity in the heart of Wildwood—four custom-designed luxury condo townhomes thoughtfully built for modern coastal living.
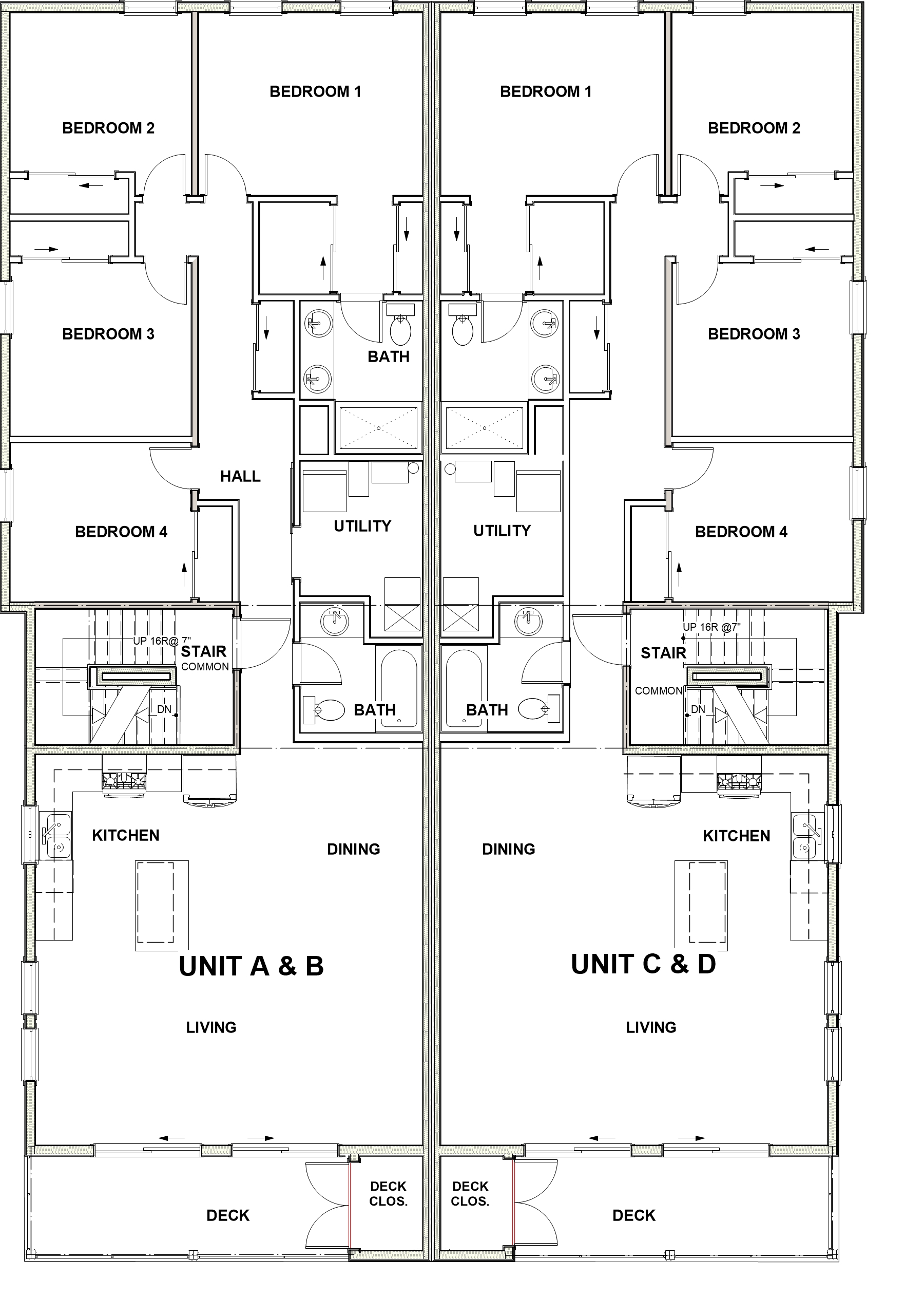
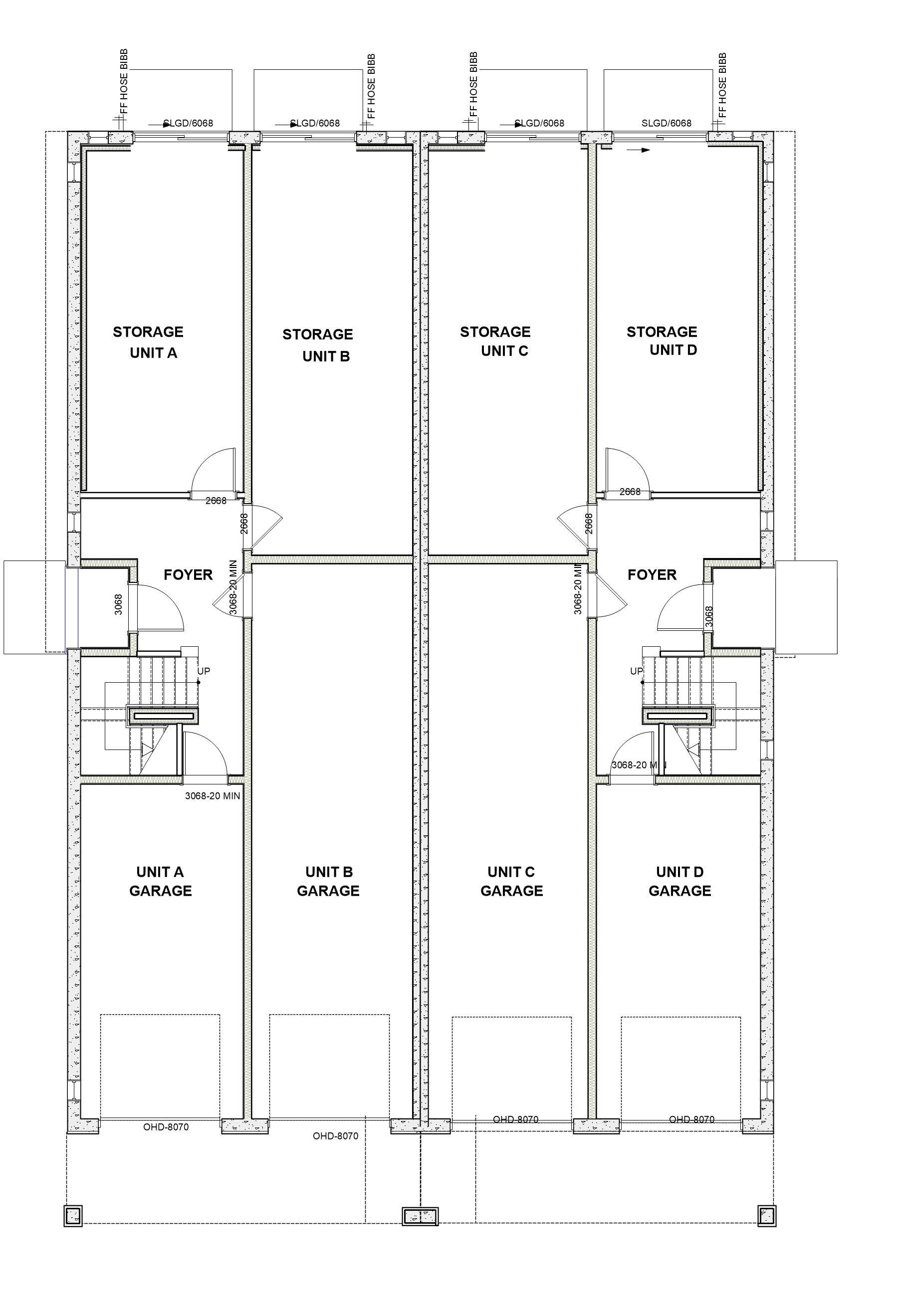
Each residence offers 4 spacious bedrooms, 2 full bathrooms, and a private garage, providing the comfort, space, and functionality today’s shore buyers are looking for. Designed with both full-time living and vacation use in mind, these homes blend elevated finishes with a smart, open-concept layout.
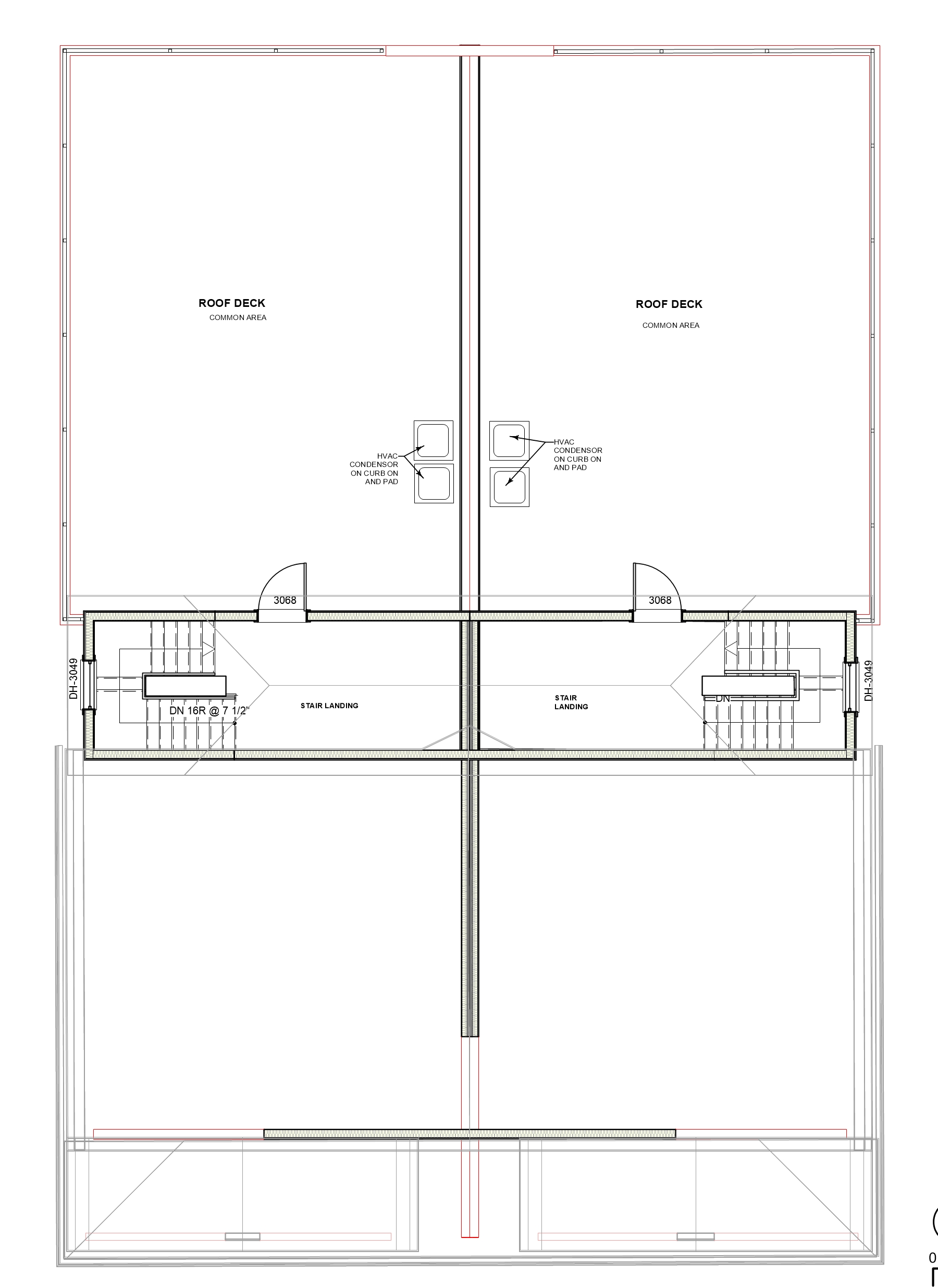
The highlight of each unit is the private rooftop deck, perfect for entertaining, relaxing after a beach day, or enjoying sunset views and summer fireworks. Inside, expect generous living spaces, designer kitchens, and high-quality craftsmanship throughout.
Whether you’re searching for a primary residence, second home, or investment property, this limited four-unit development delivers style, privacy, and long-term value—just minutes from the beach, boardwalk, dining, and entertainment.
Property Features:
-
New construction – limited 4-unit development
-
4 Bedrooms | 2 Full Bathrooms
-
Private garage parking
-
Open-concept living & dining areas
-
Custom kitchens with premium finishes
-
Private rooftop decks for each unit
-
Ideal for personal use or rental investment
-
Prime Wildwood location near beach & attractions
This is a rare opportunity to own brand-new construction in Wildwood with the space and amenities that shore owners want—without compromise.
Call 609-675-4048 - Inquire to Learn more about 308 W Lincoln Ave







